Luogo: Madalena, Isola di Pico, Azzorre (Portogallo)
Data: 2012/15
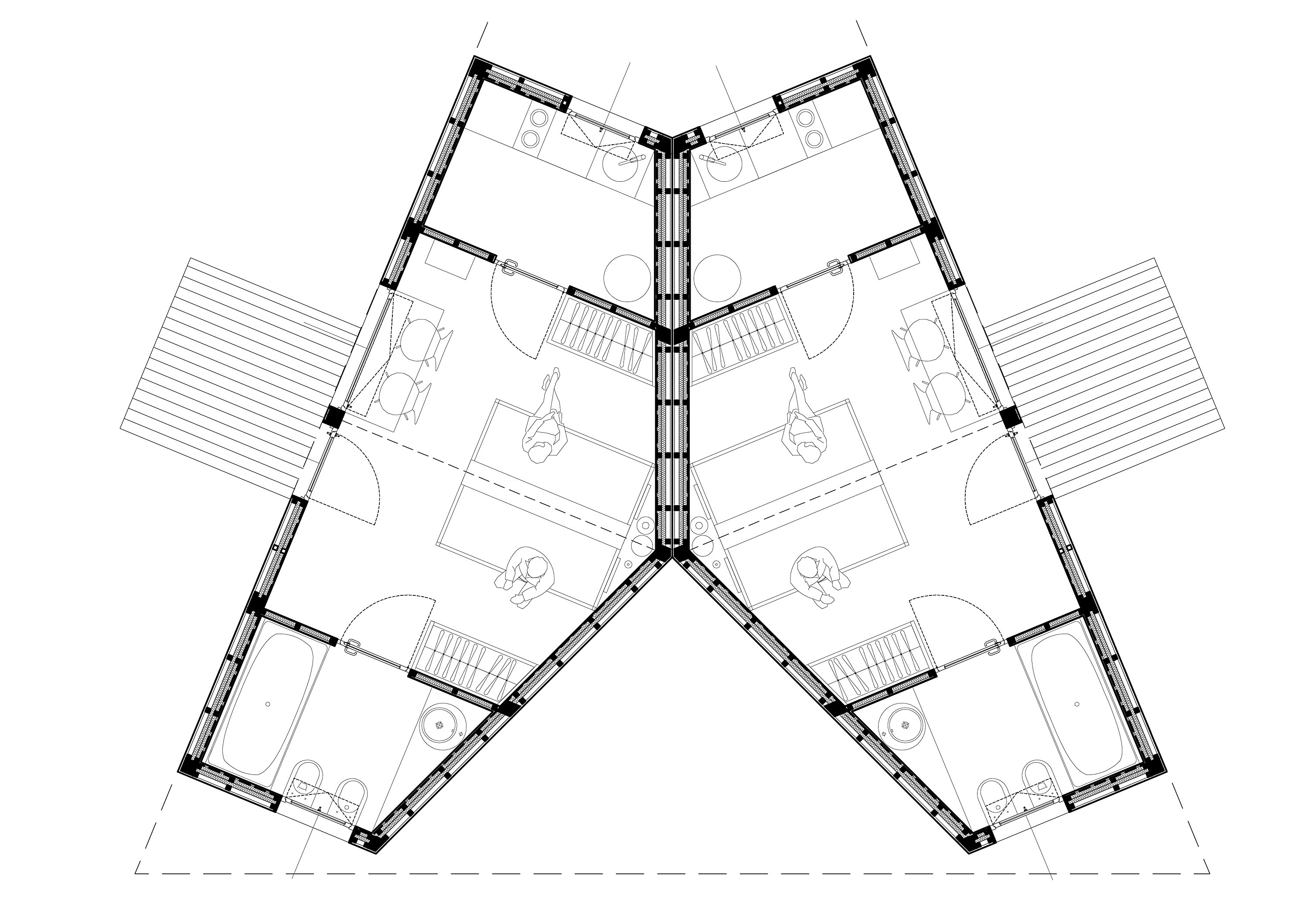
Categoria: Nature residence
Breve descrizione: Residence con alloggi immersi in un bosco di pini, incensi e cedri. Le costruzioni sono realizzate con una struttura modulare in legno e con rivestimento a secco.
Progettista: arch.Carlos de Carvalho
Collaboratori: arch.Barbara Palazzi, arch.Chiara Raffaini












