
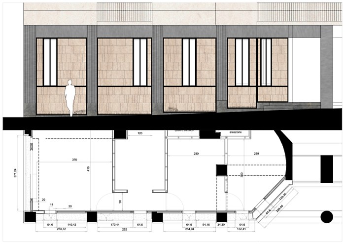
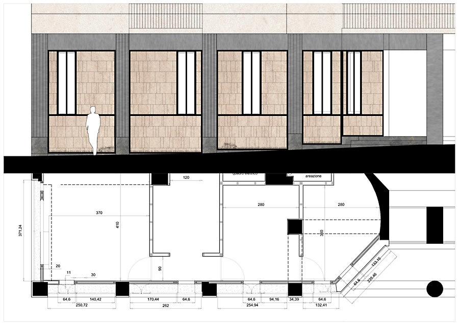
Luogo: Via Locatelli, Bergamo
Data: 2008 – 2013
Categoria: Uffici
Breve descrizione: Il progetto di trasformazione di un negozio fronte strada in uno studio di avvocati nasce dalla sfida di un giovane avvocato nel rendere pubblico un lavoro che abitualmente viene eseguito “in segreto”, quindi di rendere pubblica un’attività riservata. Cosi è nata l’idea di lasciare la facciata vetrata su strada ma di renderla come una teca che custodisce il “palazzo del diritto”, quel diritto romano che è il sistema legale originario nella maggior parte dell’Europa occidentale. Quindi la teca in ferro e vetro custodisce la scatola di travertino romano, creando una separazione fra spazio pubblico e spazio privato.
Progettista: arch.Carlos Manuel Gomes de Carvalho
Collaboratori: arch.Matteo Foresti, arch.Stefano Tacchinardi
Fotografie: arch.Francesca Perani








