EX HOTEL TELECABINE COURMAYEUR

Courmayeur_fotomontaggio 02

Luogo: Courmayeur (Aosta)

Data: 2007

Categoria: Hotel

Breve descrizione: Progetto di valorizzazione di immobile ad uso turistico-ricettivo

Progettista: arch.Carlos Manuel Gomes de Carvalho, arch.Paolo Debiaggi

Courmayeur stato di fatto
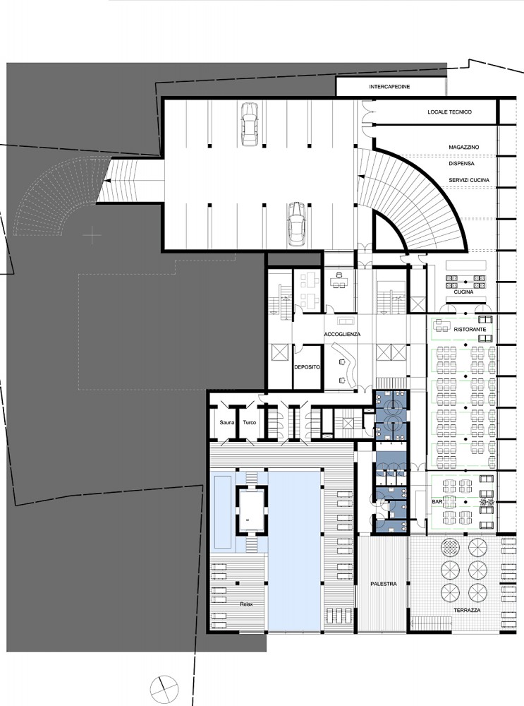
Courmayeur pianta spa
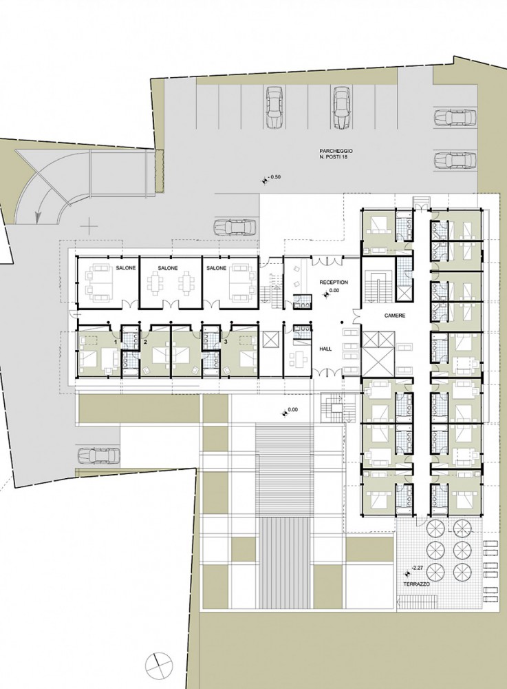
Courmayeur_pianta ingresso
fotomontaggio iperrealista 04