
Luogo: Osio Sotto (Bergamo)
Data: 2009
Categoria: Hotel
Breve descrizione: La presente proposta prevede la riqualificazione dell’area attualmente destinata a Centro di Interscambio TBSO, elevandola al rango di Polo Intermodale gomma su gomma di livello sovralocale, potenziandone il livello di servizio di trasporto pubblico collettivo, le superfici di parcheggio, le funzioni di servizio al viaggiatore esistenti con le integrazioni della ricettività alberghiera.
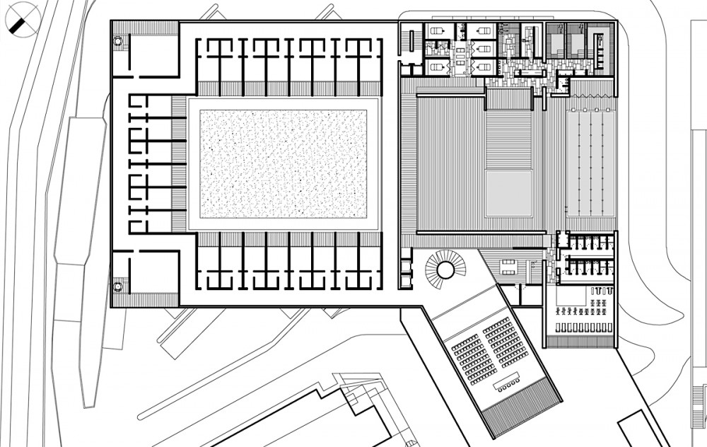
L’Hotel Milano Osio si sviluppa attorno a due corti, separate dai collegamenti orizzontali di accesso alle camere. Nella corte semipubblica, con il giardino pensile aperto agli ospiti dell’albergo, le camere si affacciano verso lo spazio interno al complesso e la distribuzione è portata sul lato esterno. Nella corte ad uso esclusivo dei clienti della zona benessere gli affacci delle camere sono rivolti all’esterno del complesso, con la distribuzione che si sposta sul lato interno dell’edificio. Privacy e riservatezza sono garantite.
Le 106 camere dell’HMO si sviluppano su tre piani: al primo livello, oltre agli ambienti wellness e fitness, si trovano 22 camere con affaccio diretto sul giardino interno, mentre le lussuose suites, sono rivolte verso l’esterno del complesso. Ai livelli superiori si trovano 41 camere per piano, occupando tutti gli spazi del complesso turistico-ricettivo.
Progettista: arch.Carlos Manuel Gomes de Carvalho, arch.Antonio Pandini, arch.Paolo Debiaggi






